Irodaszer webáruház Hobbi kellékek webáruház Jégkár és horpadás javítás fényezés nélkül
« új keresés

Keresés





- MFt
 

-

- db

- db
építés módja




















állapot


















fűtés típusa































Ingatlan hirdetések / Eladó ingatlanok / Eladó Családi ház Szentendre

Eladó Családi ház Szentendre

Az ingatlan adatai



hirdetés azonosítója: 130826
jelleg: Eladó
ingatlan típusa: Családi ház
irányár: 295 000 000 Ft
megye: Pest még több Pest megyei hirdetés
település: Szentendre még több Szentendre
telek terület: 527 m²
hasznos alapterület: 150 m²
áramellátás: Bevezetve (230 Volt)
vízellátás: Van, saját vízórával
csatornázottség: Közműhálózatba bekötve
építés módja: Tégla
komfort fokozat: Luxus
kilátás: Panorámás
fűtés típusa: Hőszivattyú
építés éve: 2020
állapot: Luxus
külső állapot: Újszerű
szobák száma: 4
félszobák száma: 1
parkolási lehetőség: Telken belüli fedett beállón
klíma: Központi klíma
bővebb leírás:  

ÁLOMOTTHON SZENTENDRÉN – PANORÁMÁS, MEDENCÉS LUXUS OKOSOTTHON KÖRNYEZETBARÁT MEGOLDÁSOKKAL

 

Képzelje el, hogy minden reggel a természet ölelésében, madárcsicsergésre ébred egy olyan otthonban a kényelem, az elegancia és a fenntarthatóság tökéletes harmóniában.

 

Ez a 2021-ben épült, modern családi ház Szentendre legkeresettebb részén, Pismány csendes utcájában kínál kényelmet, eleganciát és fenntarthatóságot – kompromisszumok nélkül.

A 150 nm-es, kétszintes otthon egy 527 nm-es telken helyezkedik el, dél-nyugati tájolással, így egész nap fürdik a természetes fényben. Az ingatlan intelligens otthonrendszerrel, környezetbarát technológiákkal, valamint medencével és tágas teraszokkal teszi teljessé az otthoni élményt.

 

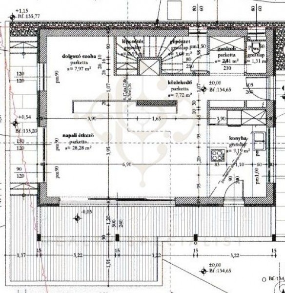
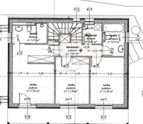
Belső elrendezés

Földszint: Tágas, világos amerikai konyhás nappali és étkező  nagy üvegfelületekkel, közvetlen kijárattal a panorámás teraszra és a medencéhez. Dolgozószoba (vagy vendégszoba), külön WC mosdóval, gardrób, gépészeti helyiség.

Emelet: 3 hálószoba, 2 fürdőszoba (az egyik káddal, a másik zuhanyzóval), háztartási helyiség, beépített szekrények a folyosón.

 

Főbb jellemzők

-          Hőszivattyús fűtés és hűtés

-          Japán napelem rendszer biztosítja az energiafogyasztást

-          Hővisszanyerős szellőztető rendszer (rekuperátor)

-          8 légkamrás, 3 rétegű, gáztöltéses nyílászárók

-          Elektromos aluminium redőnyök az ablakokon és erkélyajtón

-          Szúnyogháló minden ablakon

-          Biztonsági rendszer: kamera + riasztó

-          Automata locsolórendszer

-          2 autó számára fedett autóbeálló

 

Ne hagyja ki ezt az egyedülálló lehetőséget – vegye fel velem a kapcsolatot még ma, és nézze meg személyesen ezt a különleges otthont!

Jöjjön el és nézze meg ezt a csodás ingatlant!

 

Irányár: 295 M Ft

 

 
helységek:

Fényképek

A hirdető adatai

kapcsolat: Dr. Vincellér Zsuzsa  
telefonszám: +36 30 815-2510  
e-mail cím: uh.letracytic@aszusz.v  
     
ingatlan iroda: CITY CARTEL BUDAPEST ÉS AGGLOMERÁCIÓ Az iroda további hirdetései
iroda címe: 1118 Budapest, Hegyalja út 54.  
telefonszám: +36 13 651-450  
fax:  
e-mail cím: uh.letracytic@adub  
weboldal: www.citycartel.hu  

Amíg nem vette fel a kapcsolatot személyesen az eladóval addig ne utaljon előleget!