Irodaszer webáruház Hobbi kellékek webáruház Jégkár és horpadás javítás fényezés nélkül
« új keresés

Keresés





- MFt
 

-

- db

- db
építés módja




















állapot


















fűtés típusa































Ingatlan hirdetések / Eladó ingatlanok / Eladó Családi ház Siófok

Eladó Családi ház Siófok

Az ingatlan adatai



hirdetés azonosítója: 127648
jelleg: Eladó
ingatlan típusa: Családi ház
irányár: 98 900 000 Ft
megye: Somogy még több Somogy megyei hirdetés
település: Siófok még több Siófok
telek terület: 300 m²
hasznos alapterület: 88 m²
áramellátás: Vezeték a telek előtt
vízellátás: Van, saját vízórával
csatornázottség: Közműhálózatba bekötve
építés módja: Tégla
komfort fokozat: Dupla komfort
fűtés típusa: Hőszivattyú
állapot: Kiváló
külső állapot: Hőszigetelt
szobák száma: 3
parkolási lehetőség: Telken belül nem fedett beállón
klíma: Saját split klíma
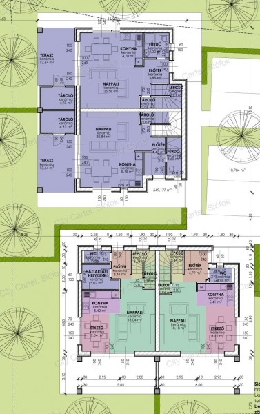
bővebb leírás: A City Cartel Ingatlaniroda eladásra kínál Siófok, Foki-hegyen egy csendes zsákutcájában, egy 88 nm2 -es, új építésű, két szintes, modern stílusú iker családi házat, földszinti és emeleti egyenként 13 m2-es terasszal, saját kertkapcsolattal, kulcsrakész állapotban, 2026. decemberi átadással.

 

Az építkezés 2026 első negyedévben veszi kezdetét, szakaszos fizetési konstrukcióval lehet szerződni a projektre .  A térkövezett parkoló gratis jár az ingatlanhoz.

 

A város egyik ismert kivitelezőjétől vásárolhat ingatlant, aki a környéken már rendelkezik számos megtekinthető referenciamunkával.

 

A földszinten kapott helyet a nappali - konyha - étkező és fürdő,az emeleten pedig 2 hálószoba, fürdőszoba
található az ingatlanban.

 

A házat 15 cm-es szigetelés fedi, riasztó és klíma is található benne. A hideg- és melegburkolatok igény szerint 8.000 Ft értékhatárig egyedileg választhatók.

 

A ház saját mérőórákkal rendelkezik. Elektromos redőny és szúnyogháló kerül beépítésre a nyílászárókra.

 

Jelen állapotában az ingatlanhoz egyedi igényeket is figyelembe lehet venni.

 

Műszaki tartalom:
- Trifa antrazit korcolt lemezfedés, antracit csatornarendszerrel .
- Falazat: Leier 30-as kerámia falazóelem, válaszfalak Leier 10-es falazóelemekből
- Térkövezett udvari kocsibeálló
- Elektromos távirányítású úszókapu
- Előkészítése a  napelem-rendszernek
- Hőszivattyús fűtés /padlófűtés és mennyezeti hűtés/
- 6 légkamrás, hőhídmentes nyílászárók, 3 rétegű üveggel, bukó-nyíló kivitelben
- Geberit beépített tartályos wc
- Nappaliban Schiedel kémény, mellyel akár kandalló, vagy cserépkályha is működtethető
- Kiépített riasztórendszer ablak; ajtónyitásra + mozgásérzékelők + külső sziréna
- Parkosított kert és automata öntözőrendszer kiépítése.

 

A családi ház kellemes, családias, új építésű házak környezetében található, közelben iskola, óvoda, gyógyszertár, orvosi rendelők, kórház, illetve bevásárlási lehetőség is könnyen elérhető.

 

Irodáink:
8600 Siófok, Fő tér 6. (Sió Pláza -1. szint)
8640 Fonyód, Ady Endre u. 5. (Balaton Áruház földszint)
8638 Balatonlelle, Rákóczi út 276. 

 

Kövess minket Facebook-on is: @citycartelbalaton!
helységek:

Fényképek

A hirdető adatai

kapcsolat: Takács Zsolt  
telefonszám: +36 70 778-2122  
e-mail cím: uh.letracytic@tlosz.scakat  
     
ingatlan iroda: City Cartel, Siófok Az iroda további hirdetései
iroda címe: 8600 Siófok, Fő tér 6. (Sió Pláza -1 szint)  
telefonszám: +36 70 778-2119  
fax:  
e-mail cím: uh.letracytic@notalab  
weboldal: siofok.citycartel.hu  

Amíg nem vette fel a kapcsolatot személyesen az eladóval addig ne utaljon előleget!